家は欲しいが、あまり予算をかけられない方へのご提案! 平面図+外観パース図 43プラン掲載
▼ ▼
ローコスト住宅図面集
▼ ▼
実物件を中心に、ローコストになると思われる間取りと外観イメージを掲載
ローコスト住宅図面集
ホーム
東玄関
◇ 39坪-1 東玄関 寄棟_切妻
◇ 39坪-1 東玄関 寄棟_切妻
2015.02.17
2025.09.18
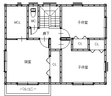
1階平面図
2階平面図
外観イメージ
参考 : 切妻の場合の外観イメージ
ホーム
検索
トップ
サイドバー
最後までご覧いただきありがとうございます。
今後ともご支援よろしくお願い申し上げます。