フリーハンドで作画した、50余りの図面を掲載しています。家づくりの一助にしてください
▼ ▼
自由設計図面集
▼ ▼
新しい感覚と斬新なデザインで住空間を快適に
自由設計図面集
ホーム
2階建
◇ 2階建 51坪 東玄関 切妻
◇ 2階建 51坪 東玄関 切妻
2016.09.10
2024.05.18
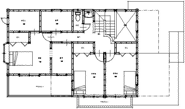
1階平面図
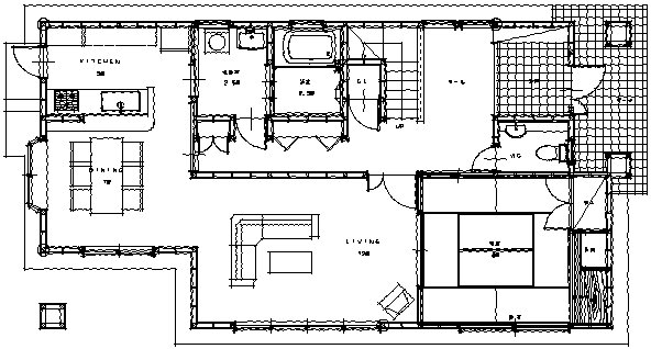
2階平面図
外観イメージ
ホーム
検索
トップ
サイドバー
最後までご覧いただきありがとうございます。
今後ともご支援よろしくお願い申し上げます。