家は欲しいが、あまり予算をかけられない方へのご提案! 平面図+外観パース図 43プラン掲載
▼ ▼
ローコスト住宅図面集
▼ ▼
実物件を中心に、ローコストになると思われる間取りと外観イメージを掲載
ローコスト住宅図面集
ホーム
西玄関
◇ 32坪-2 西玄関 寄棟
◇ 32坪-2 西玄関 寄棟
2015.02.12
2025.09.18
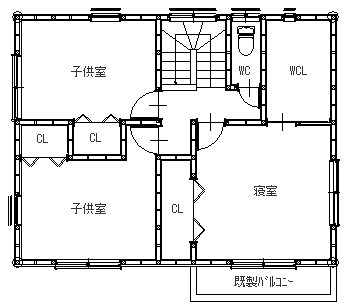
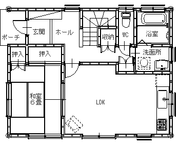
1階平面図
2階平面図
外観イメージ
ホーム
検索
トップ
サイドバー
最後までご覧いただきありがとうございます。
今後ともご支援よろしくお願い申し上げます。